

物料通过提升机进入散粮箱,散粮均匀后进入立式空气筛,物料在风力的作用下分离出轻杂质,经旋风除尘器过滤后,由闭风器排出。物料进入振动筛,根据物料的外形尺寸来调整不同规格的精密冲孔筛片,去除大杂和小杂同时通过增减筛片的层数将成品分成大粒和中小粒。
1、无破碎:提升机特殊设计,超低速无破碎;
2、稳定可靠:整机采用螺栓连接,避免焊接变形;
3、使用灵活:可移动使用,也可固定使用。
适用于各种物料的筛选和分级。
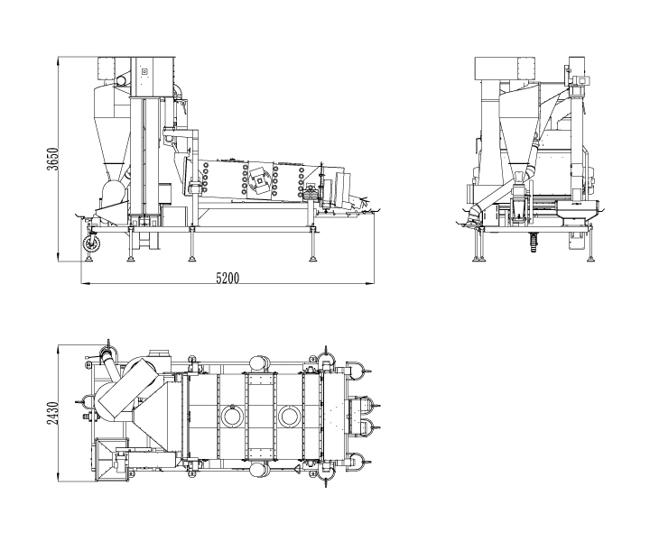
| 设备名称 | 型号 | 筛层 | 筛面尺寸(mm) | 产量(t/h) | 功率(kw) | 整机重量(Kg) | 外形尺寸 长x宽x高(mm) |
| 风筛清选机 | 5XFS-10CD | 五层 | 1500x2400 | 10 | 10.5 | 2560 | 5200x2430x3650 |
| 5XFS-10CDS | 五层 | 1500x2400 | 10 | 10.5 | 2610 | 5200x2430x3650 |